共立メンテナンスグループの株式会社共立エステート(本社:東京都文京区、代表取締役:金子 功)、大和ハウスグループの株式会社コスモスイニシア(本社:東京都港区、社長:高智 亮大朗)、大和ハウス工業株式会社(本社:大阪市、代表取締役社長:大友 浩嗣)は、3社共同で開発中の新築分譲マンション『イニシア武蔵小杉御殿町』(神奈川県川崎市、地上14階建、総戸数79戸)の第1期1次の登録販売受付を2026年1月24日(土)から開始いたしました。

『イニシア武蔵小杉御殿町』 完成予想図
『イニシア武蔵小杉御殿町』は、JR南武線・横須賀線・湘南新宿ライン「武蔵小杉」駅徒歩13分、東急東横線・目黒線「新丸子」駅徒歩11分に位置し、周辺は、「グランツリー武蔵小杉」などの大型商業施設や、昔ながらの青果店や精肉店が並ぶ商店街など利便性の高い立地です。一方で、「等々力緑地」徒歩6分、「多摩川緑地」も徒歩圏にあるなど生活利便性と自然環境の両方が備わっています。
本物件は、「すっと、深く、呼吸する。」をコンセプトに、武蔵小杉エリアの都市利便性を享受しながら、落ち着いた住環境が広がる御殿町にふさわしい住まいを目指しました。低層住宅地ならではの穏やかな住環境に配慮し、日々の暮らしやすさを重視した住戸計画を採用しています。全79戸の住戸は、可変性のある間取りや、当社で初めての取り組みとなる「シーズナルリビングバルコニー」などを備え、多様な暮らし方のニーズに応える設計としました。
また、周辺の街並みとの調和と住戸の独立性、プライバシー性に配慮し、2棟構成としました。敷地内には豊かな植栽を施したアプローチや、緑に包まれる共用空間を配置し、外部からの視線をやわらかく遮りながら、心地よい静けさと開放感を感じられる住環境を創出しています。
■ 『イニシア武蔵小杉御殿町』の主な特長
● 都心アクセスと生活利便を両立するロケーション
JR線・東急東横線「武蔵小杉」駅から徒歩圏に位置し、都心部だけでなく横浜方面へも良好なアクセスが可能。また、駅周辺には商業施設や生活利便施設が集積しており、日々の買い物や外出にも利便性を発揮します。
● 光・風・緑を取り込み、街並みに調和する建築・ランドスケープ計画
自然光や通風を効果的に取り入れる立体的な建築構成とし、共用部には植栽や水景を取り入れた空間を計画しました。外部から敷地内へと連続する緑のアプローチや、東棟1階には中庭的な共用スペースを設けることで、日常の動線の中で自然を身近に感じられる住環境を創出しています。また、外観デザインには木調や自然素材を想起させる色合いを採用し、御殿町の落ち着いた住宅地の街並みと調和する佇まいを形成。敷地内の植栽計画も含め、時間の経過とともに街に馴染んでいく建築・ランドスケープを目指しました。また、低層住宅街の立地を活かし、下層階からでも開けた視界を確保。上階からは周辺に広がる街並みを望むことができ、住戸位置に応じた眺望を楽しめる環境としています。


●ZEH-M Oriented(ゼッチ エム オリエンテッド)仕様を採用
本物件は環境性能にも配慮し、「ZEH-M Oriented※1」基準をクリア。断熱性を高めて高効率の省エネ設備機器を採用することにより、居住者が快適に過ごせると同時に、地球環境保護にも貢献する住まいを実現しています。
※1 6階建て以上の集合住宅において、住棟全体の年間一次エネルギー消費量を従来比20%以上削減した集合住宅
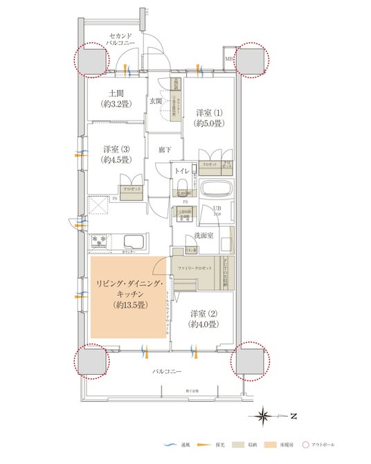
●多彩なプランと充実の設備仕様
東西2棟構成により、2LDK~3LDK(55.16平方メートル ~98.25平方メートル )の全10タイプの個性豊かなプランバリエーションと、8種のインテリアセレクト(ホームデコレーションサービス※2)を無償でご用意。土間付き住戸やビューバス付住戸など、多様な暮らしに対応。ライフスタイルに沿った住まいを選択可能です。
※2 2014年より当社新築分譲マンションブランド『INITIA』にて展開しているセットアップ型の空間設計サービス。専有部内の壁面色や素材をコーディネートした全8種類のインテリアテイストから、好みのスタイルを選択できます。



D-D type 土間付き住戸

I type ビューバス付き住戸
●シーズナルリビングバルコニー
本物件では、住まいの内と外をゆるやかにつなぐ「シーズナルリビングバルコニー」を導入しています。リビングとバルコニーをフラットなウッドデッキで連続させることで、空間に一体感と奥行きをもたらし、室内にいながらも外の広がりや開放感を感じられる設えとしました。また、バルコニーにはプランターボックスを標準設置。植栽を気軽に取り入れられる環境を整えることで、自然をより身近に感じながら、季節の移ろいを日常の暮らしの中で楽しめる住空間を提案しています。

■ 物件概要

■現地案内図

新築マンション・一戸建、リノベーションマンションブランド『INITIA(イニシア)』


“コスモスイニシアの住まい”をお届けするブランド「INITIA(イニシア)」は、お客さまとその先にある社会に向けて、一歩先の未来をつくる存在となるよう、ブランドタグラインを「一歩先の未来へ」、ブランドステートメントを「人と暮らしに、センスと、心ときめく日々を。これからの社会に、発想と、価値を。創造に心躍らせ、一歩先の未来へ。」と定めています。今後も、時代の変化や多様化する生活スタイルに対応する住まいづくりを通じて “一歩先の価値”を創造してまいります。
また、2025年6月には新築分譲住宅ブランドの新ブランドタグライン「人生を変える、心地よさ。」を発表しています。今後公開を控える商品・サービスに段階的に新たな世界観を取り入れ、都市と自然の調和、人と人との豊かなつながり、感性に響く体験といった価値を丁寧に織り込みながら、住まいに新たな可能性を創造してまいります。https://www.cigr.co.jp/pj/contents/
<共立メンテナンスとは>
共立メンテナンスは 1979年に設立し、企業の給食受託業務から事業を開始しました。学生寮・社員寮「ドーミー」を運営する寮事業、ビジネスホテル「ドーミーイン」・リゾートホテル「共立リゾート」を運営するホテル事業、高齢者向け住宅「ドーミーシニア」を運営するシニアライフ事業を展開しています。食・住・癒のサービスを通して、社会の発展に貢献してまいります。
https://www.kyoritsugroup.co.jp/
<共立エステートとは>
共立エステートは1983年に設立し、共立メンテナンスの100%出資によるグループ会社として学生寮・社員寮、ビジネスホテルやリゾートホテル、高齢者向け住宅など、共立メンテナンスが運営する多様な施設の設計・監理を手がけています。また、分譲マンションをはじめとするデベロップメント事業も展開し、快適な住まいづくりへの真摯な取り組みをしてまいります。
https://k-estate.co.jp/
<コスモスイニシアとは>
コスモスイニシアは、新築マンション・一戸建、リノベーションマンションなどの住まいを提供するレジデンシャル事業、投資用・事業用不動産の開発・仲介・賃貸管理などを行うソリューション事業、ファミリー・グループでの中長期滞在に対応するアパートメントホテルなどの開発・運営を行う宿泊事業を展開しています。社会の変化とニーズの多様化とともに事業領域を拡大し、都市環境をプロデュースする企業へと進化を続けています。
私たちは、ミッション『「Next GOOD」 お客さまへ。社会へ。一歩先の発想で、一歩先の価値を。』 の実現に向けて全ての経営活動において共通価値の創造を実践していきます。これからも、期待を超える安心や喜びをもたらす価値を追求し、商品・サービスの提供を通じて社会課題を解決するため、より多くの「Next GOOD」を、お客さま、社会と共に創ってまいります。
https://www.cigr.co.jp/

コスモスイニシアのオウンドメディア「COSMOStyle(コスモスタイル)」
https://www.cigr.co.jp/cosmost
<当資料に関するお問い合わせ先>
株式会社コスモスイニシア 経営企画部 総合企画課 広報担当 三木・奥村・根岸
TEL:03-5444-3210 FAX:050-3156-2937 EMAIL: box-gr-sen@ci.cigr.co.jp
企業プレスリリース詳細へ
PR TIMESトップへ